Jasper

Project Name: Jasper
Project Type: Home Expansion
Location: Mont-Royal

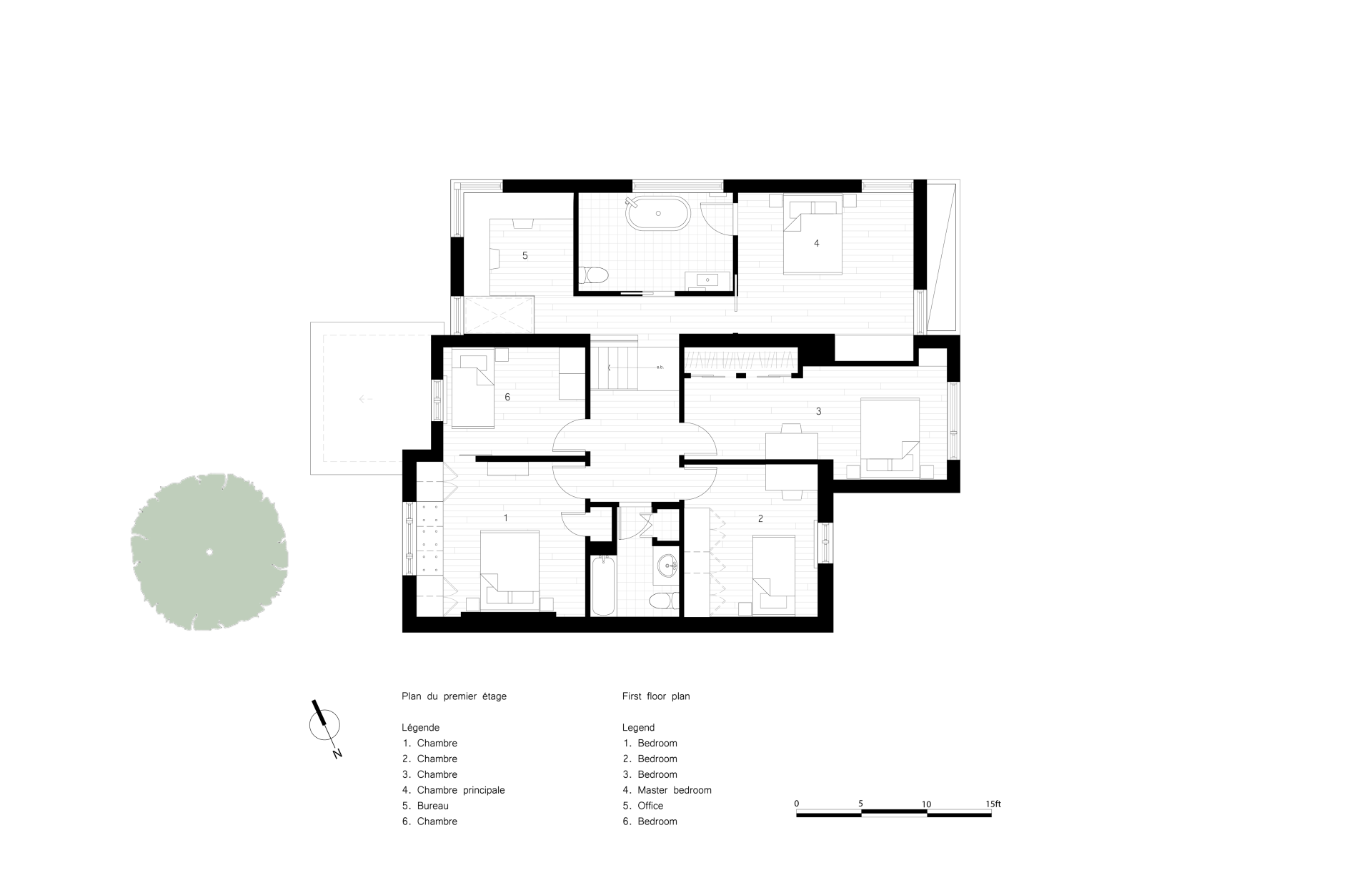
Designed to accommodate a family of four children and a grandparent, this single-family home was the subject of a thoughtful expansion proposal aimed at enhancing multi-generational living while preserving privacy and quality of life for each occupant. The architectural approach focused on honoring the existing structure by maintaining the original brickwork, while introducing a contemporary volume with clean lines and complementary materials.

The design includes a reimagined main entrance, a reconfiguration of circulation paths, and the addition of generous openings that enhance natural light and reinforce the connection between interior and exterior spaces. The grandparent’s suite, located entirely on the ground floor, is designed without physical barriers, ensuring both comfort and autonomy. The shared living areas were conceived to foster family interaction, while providing a clear spatial separation between the children’s, parents’, and grandparent’s private quarters.

Although this project remains unbuilt, it reflects our commitment to creating environments that are both functional and deeply human. It illustrates our ability to respond to complex residential needs by harmoniously blending architectural heritage with evolving family dynamics